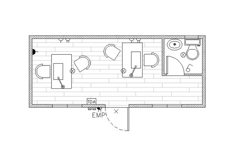
Módulo de 20 pies, incluye baño privado con 1 inodoro y 1 lavamanos. Ideal para ser usado en atención al cliente u oficina, siendo una solución practica y funcional a un valor asequible.
Módulo de 20 pies, incluye baño privado con 1 inodoro y 1 lavamanos. Ideal para ser usado en atención al cliente u oficina, siendo una solución practica y funcional a un valor asequible.




Se informa que en virtud a lo dispuesto en la ley N° 19.742, que los textos, planos e imágenes contenidas en la presente pieza fueron elaborados con fines ilustrativos, todas las dimensiones son aproximadas, no constituyendo necesariamente una representación exacta de la realidad. Su único objetivo es mostrar una caracterización general del proyecto y no cada uno de sus detalles.