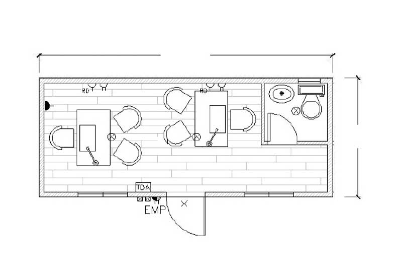
Contenedor Marítimo refaccionado de 20 pies, incluye baño equipado con 1 inodoro y 1 lavamanos. Ideal para su uso como oficina o para atención de clientes. Cuenta con estructura reforzada que le permite ser apilado uno sobre otro de forma segura y eficiente, optimizando el espacio.

